Kantoor met hal Lichtenvoorde

Voor de ROVA en de Servicedienst van de gemeente Oost Gelre  is een gezamenlijk kantoor met bedrijfshal gerealiseerd.

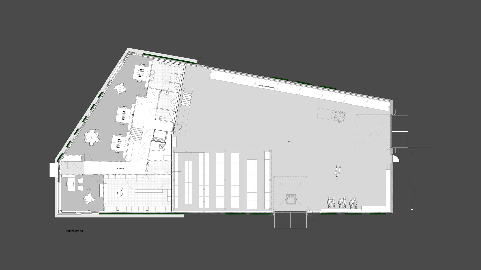
Naast de verschillende kantoren , vergaderruimtes, kantine en was- en kleedruimte voor het personeel biedt het ruimte aan  opslag  en een werkplaats voor klein onderhoud

Op het terrein is naast parkeergelegenheid ook ruimte voor diverse opslagruimtes en een wasplaats.

Het energiezuinige pand is gebouwd met duurzame materialen, zoals het gebruik van duurzaam geproduceerd en biologisch gemodificeerd naaldhouten gevelbekleding , voor de gevels.

De groene gevels en een groen dak zorgen voor meer biodiversiteit. Het groen helpt ook voor de reductie van de wateropvang en biedt verkoeling op warme dagen en zorgt voor een prettige werkomgeving.

 

 

KantorenUtiliteitEnergieneutraalOpenbaar